
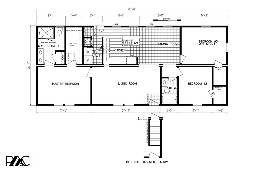
Willow

1510 Sq.Ft

3 Beds

2 Baths
About
Home Features
The Willow Modular Home offers 1,510 square feet of thoughtfully planned living space, featuring 3 bedrooms and 2 bathrooms. Designed for comfort and functionality, this home provides a balanced layout with well-defined living areas and private bedrooms, making it an excellent choice for families or everyday modern living.




