
Diamond Creek Cape

1503 Sq.Ft

3 Beds

2 Baths
About
Home Features
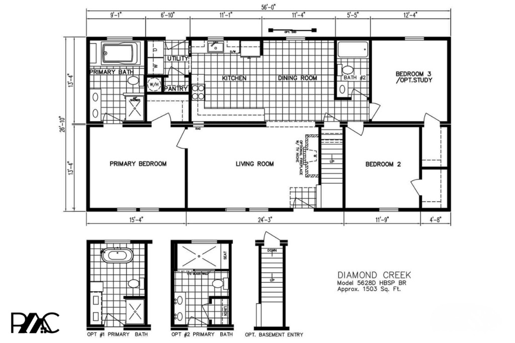
The Diamond Creek Crape is a thoughtfully designed home offering a perfect balance of space, comfort, and future flexibility. With overall dimensions of 56’0” x 26’10”, this home features a standard 10/12 roof pitch, enhancing its classic appeal, with optional on-site built roof dormers available for added character and upper-level functionality.
An optional on-site built porch creates a welcoming entry and extends the living space outdoors. Inside, the layout includes a spacious living room and primary bedroom, designed for everyday comfort and relaxation. The home offers large walk-in closets in the bedrooms, providing ample storage.
The kitchen is well-appointed with an abundant number of cabinets and generous countertop space, making it ideal for both daily use and entertaining. A standard staircase leads to an unfinished second floor, offering excellent potential for future expansion. Homeowners can also choose from optional alternate primary bathroom designs to personalize the space to their preferences.




